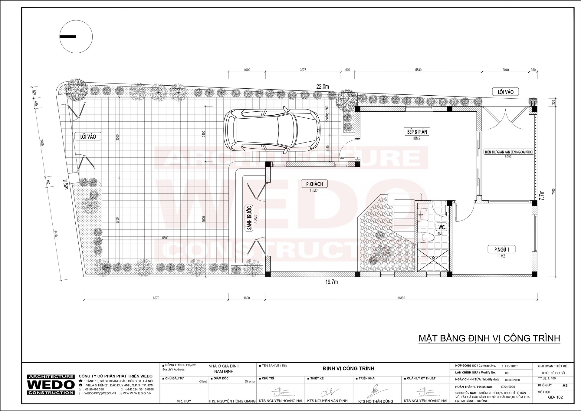
Nhà ở 2 tầng, 1 tum thiết kế theo phong cách hiện đại với tone màu sáng là chủ đạo, không kết hợp rườm rà nhiều chi tiết trang trí, màu mè văn hoa nhằm vừa đảm bảo nhu cầu sử dụng vừa giản dị mà vẫn toát lên sự tinh tế, sang trọng và tiện nghi. Công trình được các kiến trúc sư thiết kế với tính toán chi tiết đến hướng nắng, hướng gió, thu trọn gió đông nam mát mẻ cho ngôi nhà của anh. Bố anh Huy từng chia sẻ rằng, ông vô cùng thích không gian hiên nhà, nơi đó những buổi chiều rảnh rỗi, ông cùng hội đánh cờ của thôn vui vẻ "chiếu tướng" bên ấm chè cả buổi hoặc ngồi thư giãn sau một ngày làm đồng (đồng ruộng) vất vả mà không cần bật quạt bao giờ.


























.jpg)




















