Công trình:
Nhà Phố
Phong cách:
Phong cách khác
Phạm vi:
Thiết kế kiến trúc, kết cấu, điện nước
Tổng chi phí:
Đang cập nhật
DT sàn:
120 m2
Số tầng:
2
Khu vực:
N/A
Thời gian:
N/A tháng
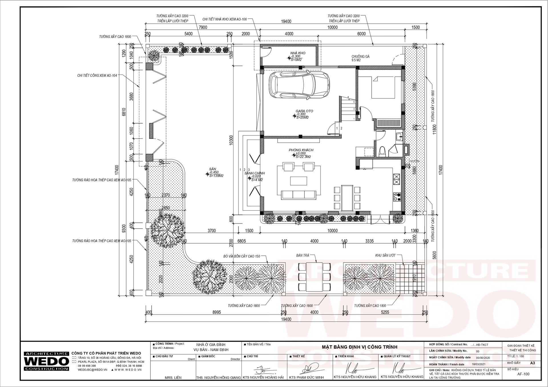
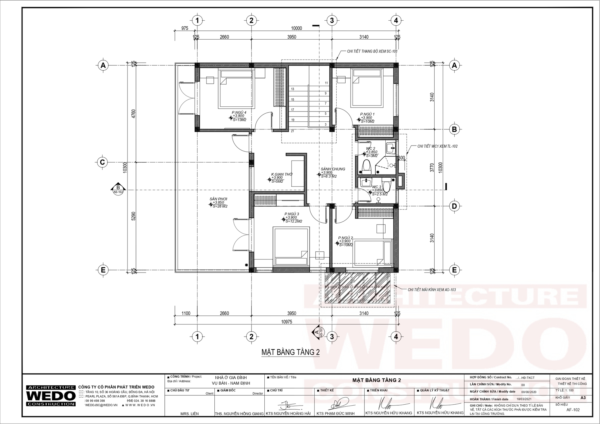
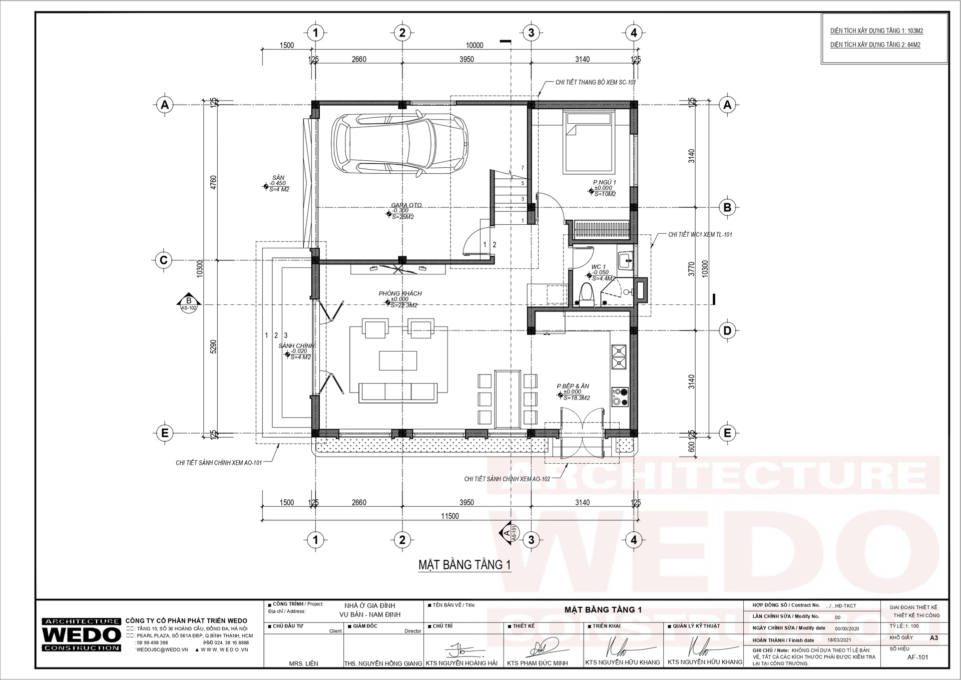
Công trình được thiết kế theo phong cách hiện đại, mái lệch đang được rất nhiều chủ đầu tư ưa chuộng trong thời gian gần đây. Khi chủ nhà - chị Liên nói rằng, nhà mình không thích kiểu mái ngói truyền thống, không thích mái bằng và cũng không dự định làm mái Thái giống rất nhiều công trình đang được sản xuất hàng loạt nhưng đừng phá cách quá, Wedo đã nghiên cứu, tính toán và gửi đến chị cùng gia đình thiết kế nhà 2 tầng hiện đại mái lệch.
Thiết kế nhà ngay từ giây phút đầu "ra lò" đã nhận được sự đồng tình lớn từ chị và các thành viên trong gia đình. Với tông sáng là chủ đạo, kết hợp mái lệch hiện đại, ngôi nhà vừa nổi bật giữa làng quê thơm mùi gạo Tám, vừa vẫn thấp thoáng đâu đó nét gần gũi và hài hòa với không gian xung quanh.

Bạn có muốn đi xem công trình thực tế này không?
gợi ý nhà thầu phù hợp
Nhà đẹp cùng phong cách
Xem thêmTHIẾT KẾ NỘI THẤT CHO NHÀ PHỐ 180M2 TẠI CHỢ LONG BIÊN, BA ĐÌNH, HÀ NỘI
Nhà Phố - 180 m²
9
2900
CẢI TẠO THI CÔNG XÂY DỰNG CÔNG TRÌNH NHÀ Ở GIA ĐÌNH ĐỘI CẤN, HÀ NỘI
Nhà Phố - 78 m²
36
3023
THẠCH BÀN HOUSE - LONG BIÊN - HÀ NỘI
Nhà Phố - 51 m²
67
4093
























.jpg)


































